1 / 3

Studio 25m² Crécy-la-Chapelle - Jardin plein sud, parking sécurisé

Crécy-la-Chapelle (77580)

139 000 €

Vente
25.00 m²
1.0 pièce pièces

Description

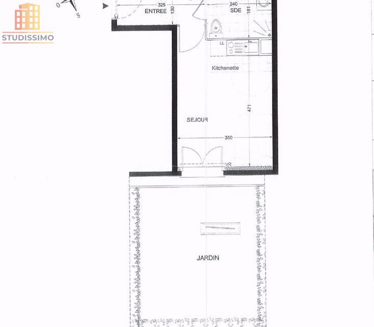
Situé à Crécy-la-Chapelle, ce studio de 25,11 m² en rez-de-chaussée vous offre une vie pratique dans une résidence récente (2016), à taille humaine et bien entretenue. L'immeuble comprend un rez-de-chaussée, un premier et un deuxième étage, le tout desservi par un ascenseur qui va également jusqu’au sous-sol. L’appartement se compose d’une entrée qui mène à une pièce de vie agréable, avec une cuisine aménagée et équipée comprenant hotte, réfrigérateur, lave-linge ainsi que des rangements. La salle d’eau propose une douche à l’italienne et des WC. Le chauffage individuel au gaz et le double vitrage assurent un certain confort au quotidien. Vous apprécierez tout particulièrement le jardin privatif de 29 m², exposé plein sud, accessible depuis la pièce principale et réservé à l’usage exclusif du logement. Une place de parking en sous-sol, sécurisée par deux portails automatiques, complète ce bien. Celle-ci est accessible directement par l’ascenseur, un vrai plus pour la vie de tous les jours. Le studio se trouve dans un environnement calme, tout en étant à deux pas des commodités : la gare ligne P est à moins de 5 minutes à pied, le centre-ville et ses services (banque, pharmacie, commerces) aussi. La zone commerciale de Couilly est à seulement 7 minutes en voiture, tout comme Val d’Europe ou Disneyland Paris qui sont à une vingtaine de minutes. Le secteur bénéficie d’une demande locative régulière, renforcée par cette proximité avec la gare et les grands pôles d’activité. À noter : le bien est vendu occupé, avec un bail d’habitation non meublé en cours depuis le 15 décembre 2024, échéance fixée au 14 décembre 2027. Les charges de copropriété s’élèvent à 188,81 € par trimestre et la taxe foncière à 637 € pour 2025. La gestion locative est encadrée par la loi du 6 juillet 1989, le loyer actuel est de 600 € charges comprises, révisable selon l’indice en vigueur.

Caractéristiques

Type de bien

Appartement

Surface

25.00 m²

Pièces

1.0 pièce

Année de construction

2016

DPE Énergie

D

GES

E

Localisation

La zone colorée indique l'emplacement approximatif du bien

Contacter Particuliers LeBonCoin

Intéressé par ce bien ? Envoyez un message à l'agence.

Informations

Type d'annonce Vente
Type de bien Appartement
Ville Crécy-la-Chapelle
Code postal 77580
Retour aux annonces