1 / 3

Appartement 19m² Saint-Denis

Saint-Denis (93380)

95 000 €

Vente
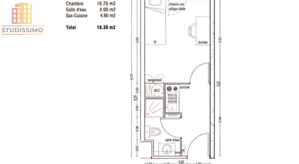
19.00 m²
1.0 pièce pièces

Description

Situé à Saint-Denis, cet appartement d’une pièce d’environ 19 m2 est proposé à la vente. Il se trouve dans une résidence construite en 2006 qui offre un cadre de vie pratique et contemporain. L’appartement se compose d’une pièce principale lumineuse et fonctionnelle, avec un agencement pensé pour optimiser l’espace. Actuellement loué, il représente une opportunité intéressante pour un investissement locatif, avec un locataire déjà en place. Le quartier de Saint-Denis bénéficie d’un environnement urbain dynamique et de nombreux services à proximité, facilitant le quotidien des résidents. Ce bien conviendra parfaitement à ceux qui recherchent un placement sûr dans une commune bien desservie.

Caractéristiques

Type de bien

Appartement

Surface

19.00 m²

Pièces

1.0 pièce

Année de construction

2006

DPE Énergie

N/A

Localisation

La zone colorée indique l'emplacement approximatif du bien

Contacter Particuliers LeBonCoin

Intéressé par ce bien ? Envoyez un message à l'agence.

Informations

Type d'annonce Vente
Type de bien Appartement
Ville Saint-Denis
Code postal 93380
Retour aux annonces