1 / 3

Appartement 25m² Saint-Maur-des-Fossés - Proche bords de Marne, marché

Saint-Maur-des-Fossés (94210)

157 000 €

Vente
25.00 m²
1.0 pièce pièces

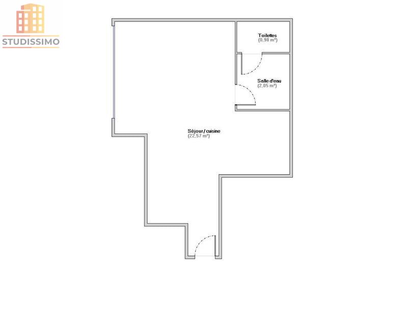
Description

Situé à Saint-Maur-des-Fossés, dans le quartier recherché de La Varenne Saint-Hilaire, ce studio se trouve au rez-de-chaussée surélevé d’un immeuble de trois étages construit en 1964, à l’angle des bords de Marne. Le calme est au rendez-vous puisque l’appartement donne sur un jardin, bien à l’abri de la rue. D’une surface de 25 m², ce studio propose une entrée qui dessert un séjour lumineux, une cuisine aménagée et semi équipée avec plaques de cuisson et hotte. La salle de bains est fonctionnelle et les toilettes sont séparés pour plus de confort, il y a aussi plusieurs placards pour le rangement. Une cave, accessible en rez-de-chaussée, vient compléter l’ensemble. L’eau chaude et le chauffage sont collectifs, ce qui est bien pratique au quotidien. Le cadre de vie est agréable : à seulement 30 secondes à pied des bords de Marne, parfait pour des balades au fil de l’eau, et à 5 minutes du marché de La Varenne ainsi que des commerces du centre-ville. Le RER A La Varenne se rejoint en dix minutes à pied, ce qui facilite les déplacements vers Paris ou les environs.

Caractéristiques

Type de bien

Appartement

Surface

25.00 m²

Pièces

1.0 pièce

Année de construction

1964

DPE Énergie

E

GES

E

Localisation

La zone colorée indique l'emplacement approximatif du bien

Contacter Particuliers LeBonCoin

Intéressé par ce bien ? Envoyez un message à l'agence.

Informations

Type d'annonce Vente
Type de bien Appartement
Ville Saint-Maur-des-Fossés
Code postal 94210
Retour aux annonces